
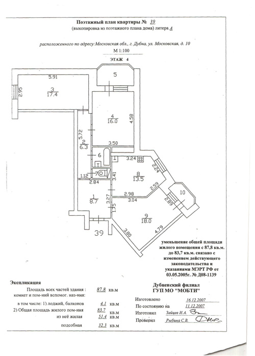
Продаю 3-х комнатную квартиру на 3 этаже в 5-ти этажном кирпичном доме (ул. Московская, д. 10) общей площадью 88 м. кв. В подъезде 19 квартир, лифт, домофон. Вид на р. Волга. Документы полностью готовы к продаже (не посредники!). Прихожая - 8.7; коридор - 6.3; кухня - 13.5; комнаты - 18.0/16.0/17.4; туалет – 1.25; ванная – 2.7; 2 лоджии - 4.1/4.1; хоз. сарай - 2.7.
Дата последнего изменения: 04.02.2008
Дата размещения объявления: 04.02.2008
Показать все объявления от Марина
Контактное лицо: Марина E-Mail: Отправить письмо на E-Mail автора объявления
Телефоны фирмы: 8-963-653-68-63, 8-910-416-15-91
Адрес продавца:
Дубна Московская область
Адрес товара/услуги: Дубна Московская область
Раздел ТНВЭД:
Код ТНВЭД: 9804000001 | Другие объявления в этом разделе
|
|
|
|